NPOマーケット
全国
北海道
青森県
岩手県
宮城県
秋田県
山形県
福島県
茨城県
栃木県
群馬県
埼玉県
千葉県
東京都
神奈川県
新潟県
富山県
石川県
福井県
山梨県
長野県
岐阜県
静岡県
愛知県
三重県
滋賀県
京都府
大阪府
兵庫県
奈良県
和歌山県
鳥取県
島根県
岡山県
広島県
山口県
徳島県
香川県
愛媛県
高知県
福岡県
佐賀県
長崎県
熊本県
大分県
宮崎県
鹿児島県
沖縄県
全市区町村
全国
福知山
google
NPO会員登録(無料)
様
物件情報一覧
物件登録・管理
ヘルプ
ログイン
物件情報
登録番号
0000001746
更新日
2026/01/31
売買貸借区分
売りたい
所在地
京都府 福知山市 字天田(北本町一区)69−4
最寄駅
JR福知山線 福知山駅 徒歩8分
物件名
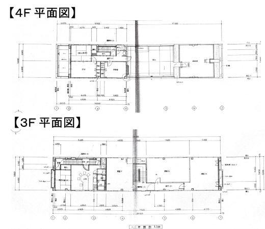
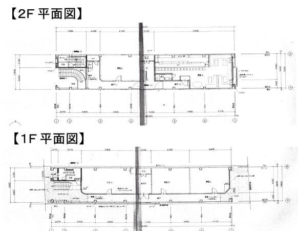
売ビル プラザA&K
売買価格または賃貸価格
80,000,000円
物件種別
店舗
築年月日
経過年備考
平成1年7月
構造備考
鉄骨造銅板葺4階建
建物面積
519.35u(157.10坪)
土地面積
208.98u(63.21坪)
土地権利
所有権
都市計画
市街化区域
建ぺい率/容積率
80%・200%
用途地域
近隣商業地域(準防火地域)
土地地目
宅地
取引態様
仲介
土地備考
・北側約23m道路に約5.8m接道
・南側6.3m道路に約5.8m接道
物件内容
公営上下水道、関西電力他
テナント8戸+住居1戸
満室表面利回り 11.1%
実質表面利回り 6.6%
登録者名
福知山ハウジング
連絡先
京都府福知山市広峯町22番地 ニコニコプラザ2階
TEL 0773-25-4111
FAX 0773-23-4181
問い合わせ
お名前
連絡先
メールアドレス
問い合わせ内容
コメント
一覧へ戻る